
Zaproszenie do składania ofert – prowadzenie bufetu
Wydział Prawa i Administracji Uniwersytetu Szczecińskiego zaprasza do współpracy podmioty zainteresowane prowadzeniem bufetu gastronomicznego w budynku nr 1 kampusu Uniwersytetu Szczecińskiego przy al. Piastów 40B w Szczecinie.
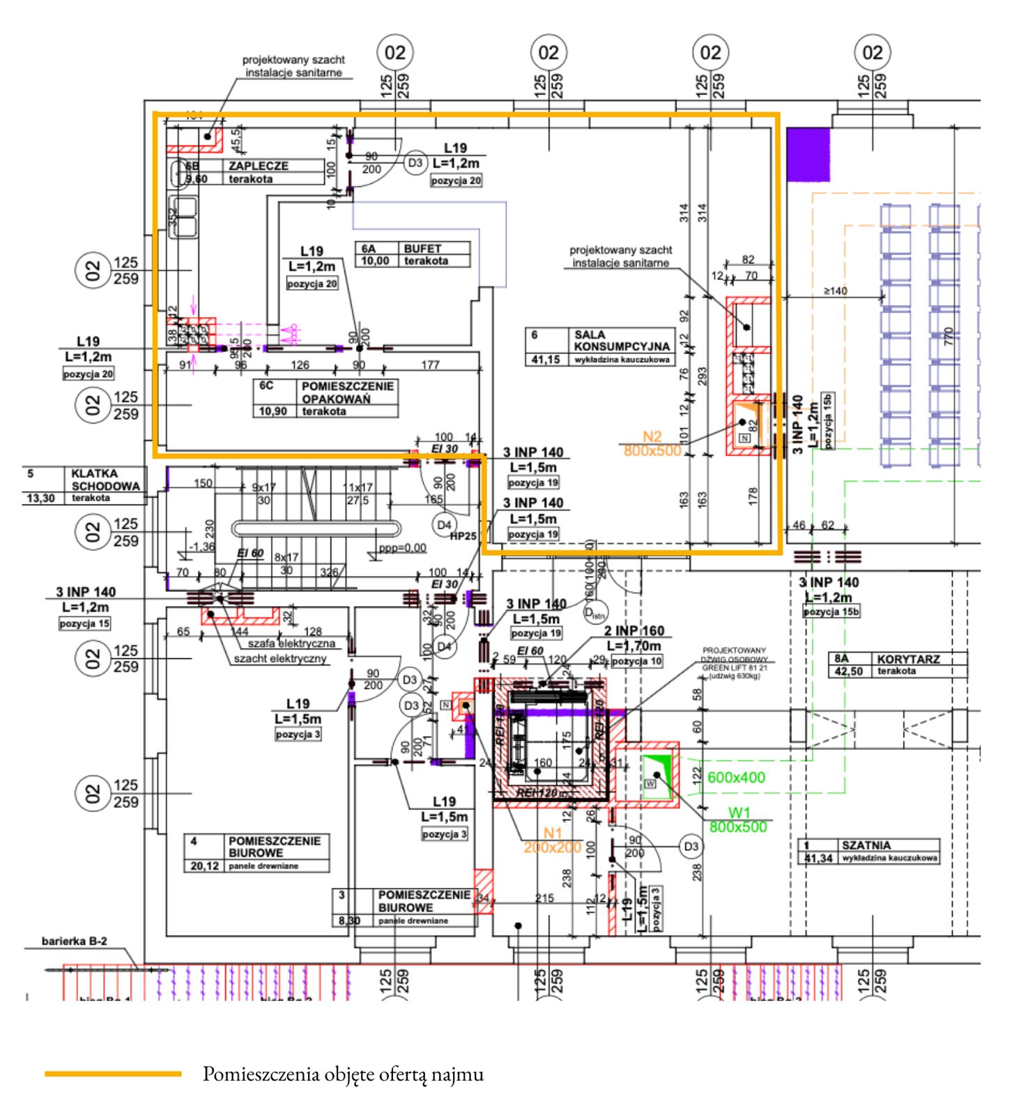
Przedmiotem oferty jest wynajem pomieszczeń o łącznej powierzchni 71,85 m², obejmujących salę konsumpcyjną, bufet oraz zaplecze bufetowe, z przeznaczeniem na prowadzenie działalności gastronomicznej w budynku dydaktycznym Wydziału Prawa i Administracji US.
Pomieszczenia posiadają dostęp do węzła sanitarnego. Oferta nie obejmuje wyposażenia lokalu (oprócz stołów i krzeseł w sali konsumpcyjnej). Plan pomieszczeń objętych ofertą najmu (kliknij tutaj). Czynsz: 18,00 zł/m² netto + opłaty za media.
Bufet zlokalizowany jest wewnątrz budynku Uniwersytetu Szczecińskiego i nie posiada niezależnego wejścia. Prowadzenie działalności będzie możliwe wyłącznie w godzinach funkcjonowania budynku. Najemca powinien zapewnić funkcjonowanie bufetu, co najmniej od poniedziałku do piątku w godzinach 8.00 – 15.00.
Podmioty zainteresowane najmem proszone są o przedstawienie propozycji prowadzenia bufetu, obejmującej m.in. opis planowanej oferty gastronomicznej i przykładowe menu z cenami. Szczegółowy zakres wymaganych informacji zostanie przekazany podmiotom zainteresowanym złożeniem oferty.





W okresach, w których nie odbywają się zajęcia dydaktyczne (ferie, przerwy świąteczne, sesje egzaminacyjne, wakacje), dopuszcza się skrócenie godzin pracy bufetu – po uzgodnieniu z wynajmującym. W wyjątkowych przypadkach (np. długie weekendy, wybrane weekendy bez zajęć dydaktycznych, inne dni wolne od pracy) wynajmujący zastrzega sobie możliwość skrócenia godzin otwarcia lub zamknięcia budynku. Informacja o takich zmianach będzie przekazywana najemcy z odpowiednim wyprzedzeniem.
Szczegółowe informacje można uzyskać pod numerem telefonu: 91 444 28-11 (od poniedziałku do piątku) w godz. 7.15 – 15.15. Oferty i zapytania proszę przesyłać na adres e-mail: kamila.ekert@usz.edu.pl
Zainteresowanych prosimy o kontakt do dnia 5 grudnia 2025 r.

